Neubau Doppelhaushälfte in toller Lage von Hüllhorst Schnathorst. Fertigstellung Anfang 2026 geplant























- Objektart
- Haus
- Objekttyp
- Doppelhaushälfte
- Vermarktungsart
- Kauf
- PLZ
- 32609
- Ort
- Hüllhorst / Schnathorst
- externe Objnr
- 2663
- Wohnfläche
- 120 m²
- Grundstücksgröße
- 300 m²
- Anzahl Zimmer
- 4
- Anzahl Badezimmer
- 1
- Kaufpreis
- 359.000 €
- Baujahr
- 2022
- Endenergiebedarf
- 21,2 kWh/(m²a)
- Energieausweis
- Bedarfsausweis
- Energieausweis gültig bis
- 03.10.2032
- Energieeffizienzklasse
- A+
- Provision
- 3,57 % vom Kaufpreis inkl. MwSt.
- wesentlicher Energieträger
- Luft/wasser Wärmepumpe
Beschreibung
Willkommen im neuen Zuhause – Einzug 2026!Auf einem ca. 600 m² großen Grundstück entstehen aktuell zwei moderne Doppelhaushälften. Die Fertigstellung ist für Anfang 2026 geplant. Noch haben Sie die Möglichkeit, viele Ausstattungsdetails wie Bodenbeläge, Badausstattung und Innentüren nach Ihren persönlichen Wünschen zu gestalten.
Raumkonzept – durchdacht und familienfreundlich
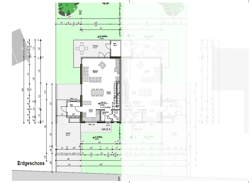
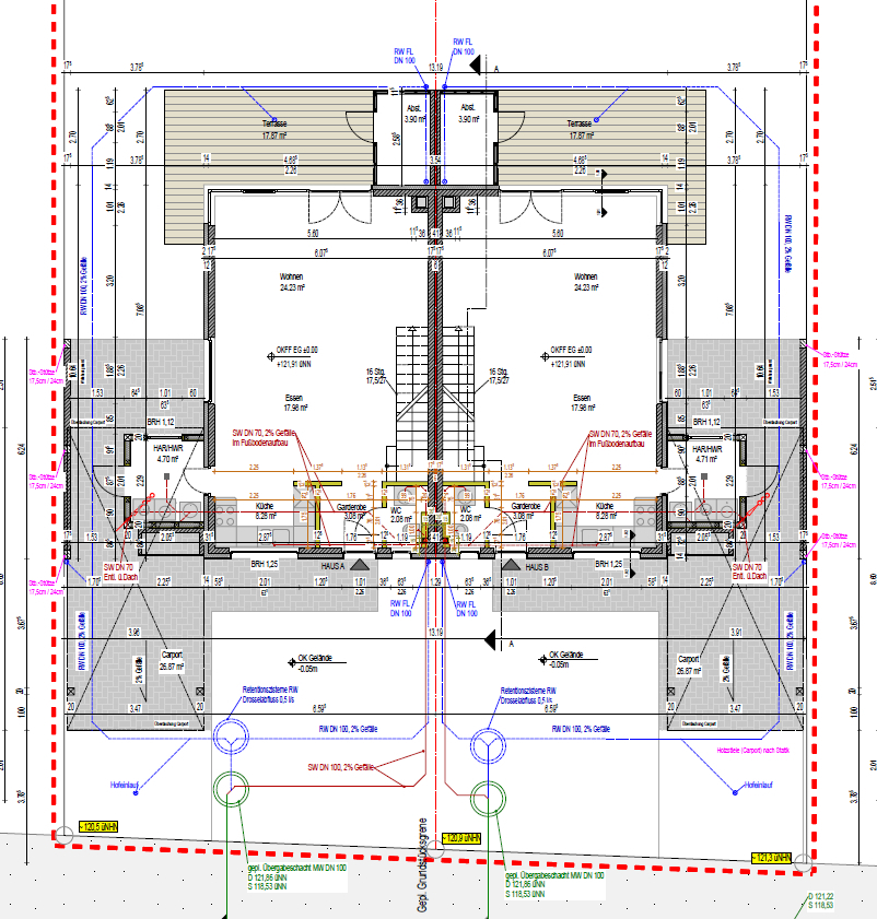
Jede Doppelhaushälfte bietet ca. 120 m² Wohnfläche, verteilt auf zwei Etagen mit insgesamt vier Zimmern.
Im Erdgeschoss befinden sich:
• ein Gäste-WC
• ein praktischer Hauswirtschaftsraum
• ein großzügiger Wohn- und Essbereich mit offener Küche und Zugang zur Terrasse mit Blick in den Garten
Im Obergeschoss erwarten Sie drei helle, gut geschnittene Schlafzimmer, die sich ideal als Kinderzimmer, Büro oder Gästezimmer nutzen lassen. Zusätzlich steht Ihnen ein komfortables Badezimmer zur Verfügung – ausgestattet mit einer modernen Dusche und einer entspannenden Eckbadewanne.
Lage
Lage – Leben in Hüllhorst-SchnathorstIhr neues Zuhause entsteht in einer verkehrsberuhigten Anwohnerstraße im beliebten Hüllhorster Ortsteil Schnathorst – ruhig gelegen und doch gut angebunden.
Die Gemeinde Schnathorst zählt rund 2.700 Einwohner und gehört zur Großgemeinde Hüllhorst mit ca. 15.000 Einwohnern. Die unmittelbare Nähe zum Wiehengebirge bietet Ihnen einen hohen Freizeitwert, ideal zum Wandern, Radfahren oder einfach zum Entspannen in der Natur.
Infrastruktur – alles in direkter Nähe
• Supermärkte, Bäckereien, Gastronomie, Banken, Ärzte & Apotheken: 300–750 m entfernt
• Spielplatz: fußläufig in wenigen Minuten erreichbar
• Grund- und weiterführende Schulen: ebenfalls im nahen Umfeld
• Bushaltestelle im Ortskern mit stündlicher Anbindung an umliegende Orte
• Bundesstraßen B65 & B238 sowie A30: in ca. 15 Minuten erreichbar
Ausstattung Beschreibung
Ausstattung – hochwertig und individuellDie Ausstattung lässt kaum Wünsche offen. Sie wählen selbst:
• Bodenbeläge in Vinyl - Holzoptik oder stilvolle Fliesen
• Hochwertige Sanitärobjekte namhafter Hersteller
• Türen und Details nach Ihrem Stil
Weitere Highlights:
• Moderne Luft-Wasser-Wärmepumpe für umweltfreundliches Heizen
• Fußbodenheizung in allen Wohnräumen
• Bodentiefe Fenster mit 3-fach-Wärmeschutzverglasung
• Elektrische Rollläden
• Schwimmender Estrich mit Wärmedämmung
• Malerarbeiten im Leistungsumfang enthalten
• Optionale Photovoltaikanlage (nicht im Preis enthalten)
Sonstige Angaben
Der Preis versteht sich für eine Doppelhaushälfte. Die zweite Doppelhaushälfte steht ebenfalls zum Verkauf.Lust auf Veränderung? Rufen sie uns an!
Ansprechpartner ist Herr Thomas Küssner Tel. 0173-2861291
